33
$899,000 Sale
Listed 2 hours ago
139 QUEEN STREET
· 3
· 2.0
· 7
· 700 - 1100
Key Facts
Key facts for 139 QUEEN STREET
Property Type
House, House
Parking
Garage: Yes, 7 parking
MLS #
N12437358
Size
700 - 1100 sqft
Basement
Partially finished, N/A (Partially finished)
Listed on
-
Lot size
-
Tax
-
Days on Market
-
Year Built
-
Maintenance Fee
-
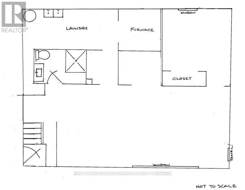
Description
This detached, raised bungalow on a 60' x 156' lot features a 1029 sq ft main floor with 3 bedrooms, 1 bath, living room, eat-in kitchen and its own laundry. The lower level has its own entrance, 3-piece bathroom, and laundry. There is an open ARU (Additional Residential Unit) permit. (Previously k...nown as ADU -Accessory Dwelling Unit). The extra-deep, level, private lot has plenty of potential. The 660 sq ft detached garage/shop with electricity and a wood stove create more opportunities. A separate garden shed provides extra storage. This lovely neighbourhood is conveniently located near shops, schools, and transit. JLR Bell Public School (JK-5), is a fabulous school and has no busses at drop off or pick up time. Upper Canada Mall, historical downtown Newmarket, Riverwalk Commons and Newmarket GO train station are all within 2km of this property. (id:10452)
Similar Properties (No results)
Room Types
Bedroom 2
-
Dimensions 3.5 m x 2.66 m
100.21 sqft
Bedroom 3
-
Dimensions 3.58 m x 2.69 m
103.66 sqft
Bedroom 4
-
Dimensions 3.24 m x 3.15 m
109.86 sqft
Listing courtesy of: ROYAL LEPAGE YOUR COMMUNITY REALTY
This REALTOR.ca listing content is owned and licensed by REALTOR® members of The Canadian Real Estate Association.